
Plieno konstrukcijos latakai yra esminis pastato stogo kanalizacijos sistemos komponentas. Pagrindinė jų funkcija yra surinkti lietaus vandenį nuo stogo, nukreipti jį į vertikalius vamzdžius ir išleisti jį į lauko kanalizacijos sistemą, neleidžiant jam tiesiogiai nykstančių sienų ar mirkymo pamatų. „Liweiyuan“ produkto dizainui ir montavimui būdingas didelis stiprumas ir lengvas svoris, užtikrinant sklandų drenažą ir išskirtinį ilgaamžiškumą.
Plieno konstrukcijos latakai yra esminis pastato stogo kanalizacijos sistemos komponentas. Pagrindinė jų funkcija yra surinkti lietaus vandenį nuo stogo, nukreipti jį į vertikalius vamzdžius ir išleisti jį į lauko kanalizacijos sistemą, neleidžiant jam tiesiogiai nykstančių sienų ar mirkymo pamatų. „Liweiyuan“ produkto dizainui ir montavimui būdingas didelis stiprumas ir lengvas svoris, užtikrinant sklandų drenažą ir išskirtinį ilgaamžiškumą.
„Liweiyuan“ plieno konstrukcijos latakai yra pagaminti iš korozijai atsparių ir atsparių smūgiams.
Mūsų produktas yra cinkuotas karštakojiškai, pasižymintis puikiu atsparumu korozijai, mažoms kainoms ir ilgam aptarnaujančiam laikui. Tai yra 1,5–2,5 mm storio, jis tinka daugumai programų.
Šis produktas, pagamintas iš nerūdijančio plieno, pasižymi atsparumu korozijai ir yra ypač tinkamas pakrančių ar drėgnoms aplinkoms. Galima įsigyti 1,0–2,0 mm storio, jis siūlo didesnę kainą, bet ilgą tarnavimo laiką.
Mūsų spalvomis dengti plieno produktai yra pagrįsti cinkuotu plienu, padengtais orams atsparia danga, pavyzdžiui, poliesteriu ar fluorkarbonija, siekiant atsparumo korozijai ir dekoratyviniam poveikiui. Galima įsigyti 1,2–2,0 mm storio, jie tinka pastatams, kuriems reikalingas aukštas estetinio patrauklumo lygis.
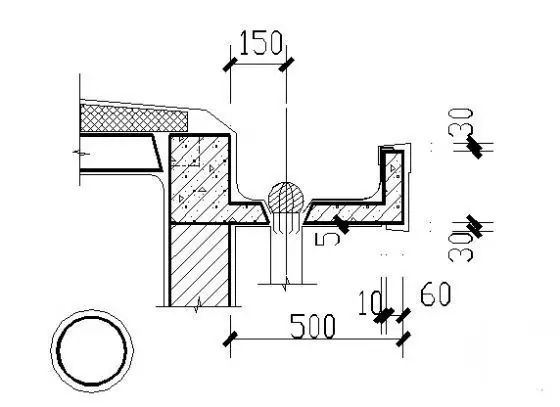
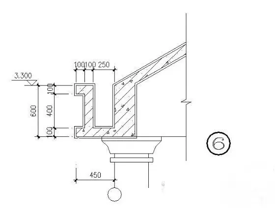
Plieninės konstrukcijos latako konstrukcinę formą reikia pritaikyti prie stogo šlaito ir karnizo dizaino. Įprasti tipai yra U formos ir V formos. Diegimo procesas yra toks:
Mūsų plieninės konstrukcijos latakai naudoja kampinius plieno latakų laikiklius, kad pritvirtintų juos prie plieninės konstrukcijos karnizo sijų ar pullių. Tarpai tarp laikiklių yra 600–1000 mm, kad būtų užtikrintas tolygus įtempių pasiskirstymas per lataką.
Gatavos latakai yra išankstiniai ir prijungti vietoje, naudojant jungtis ar suvirinimą. Sutampajus reikalingas sankryžoje tarp latako ir stogo pakloto.
Mes galime sumontuoti mirksėjimą virš stogo pakloto. Apatinis latako galas turėtų būti dedamas žemiau stogo pakloto ir uždaromas sandarikliu. Latakos apačioje turėtų būti išleidimo skylės, visų pirma, kad būtų galima prijungti prie lietaus vandens pakaitalų.
Mūsų plieno konstrukcijos latakų gamybos procesas apima pjaustymą pagal piešimo matmenis, lenkimą, dažymą, gatavų gaminių patikrinimą, pakuotę ir gabenimą. „Liweiyuan“ plieno konstrukcijos latakai yra suprojektuoti ir sumontuoti, kad būtų užtikrintas atsparumas korozijai, sklandžiai drenažui ir ilgaamžiškumui, užtikrinant efektyvų drenažą.